影院是為觀眾放映電影的場所,是由觀眾廳、公共區域、放映機房和其他用房(包括貴賓接待室、建筑設備用房、智能化系統機房等)組成。消除觀眾廳聲聚焦,顫動回聲,多重回聲,減少噪聲對擴聲系統的聲干擾,營造一個良好的視聽覺效果,電影院的建筑聲學設計是必不可少的一部分。

項目簡介:
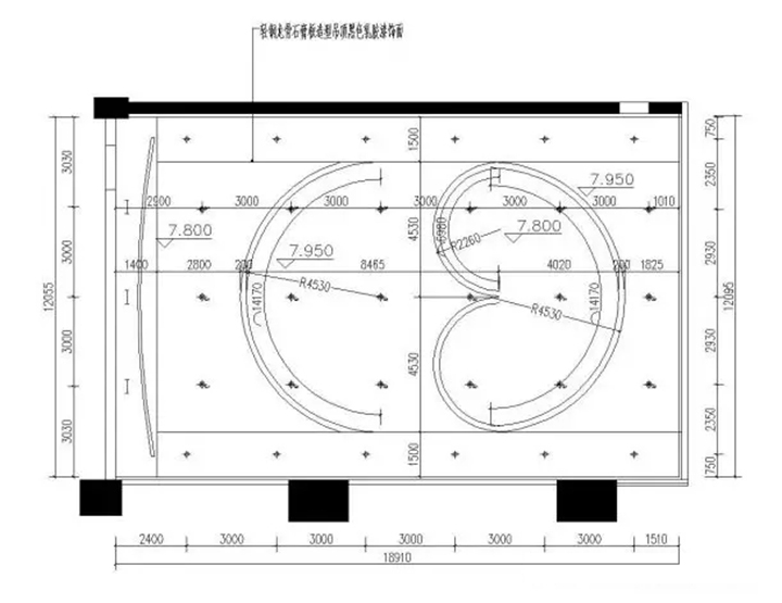
順德宏晟國際影城,占地規模4000余方,是按國際一流影院標準建設、管理的五星級多廳豪華影院。影城擁有7個五星級豪華放映廳,其中大廳2個,小廳4個,VIP廳1個。均使用原裝整機進口的比利時巴可高清放映設備,美國JBL音響設備。 高起坡、大落差、寬排距的座椅設計,保證了每位觀眾的觀影感受。 同時,宏晟國際影城也是大良地區引入4D電影的影院 ,震動、吹風、噴水、飄雪、閃電 、煙霧、布景、人物表演等特技效果通過環境特效模擬仿真, 讓影迷觀看電影時享受身臨其境!根據各影廳容積大小,設計目標如下所示:
1、室內空間獲得合適的混響時間和混響頻率特性,根據各個廳的容積大小,中頻混響時間控制在0.35s-0.5s范圍內,以達到良好的音質環境及語言清晰度。
2、無聲駐波、聲聚焦、聲染色等聲學缺陷。
標準規范及設計依據:
1、《劇場、電影院和多用途廳堂建筑聲學設計規范》(GB/T50356-2005)
2、《電影院建筑設計規范》(JBJ58-2008)
3、《電影院視聽環境技術要求》(GB/T3557-94)
4、《聲環境質量標準》(GB3096-2008)
5、《廳堂擴聲系統設計規范》(GB50371-2006)
6、《廳堂混響時間測量規范》(GBJ76-84)
7、《建筑隔聲與吸聲構造》(國家建筑標準設計圖集08J931)
8、《民用建筑工程室內環境污染控制規范》(GB50325-2001)
9、《建筑設計防火規范》(GBJ16-1987)2001年版
10、《建筑內部裝修設計防火規范》(GB50222-95)
11、《民用建筑隔聲設計規范》(GB50118-2010)
12、《數字立體聲電影院的技術規范》(GY/T183-2002)
13、電影院星級評定要求——廣電總局文
14、《綠色建筑評價標準》(GB/T50378-2006)
影院的聲學分析:
以一號廳為例,主要存在以下聲學問題:
1、該類型場館是典型的長方形體,兩側墻面、前墻與背墻形成了兩道平行墻組。該型體容易產生顫動回聲及多重回聲,將嚴重干擾音響設備的運行。
2、該場館長、寬尺寸較大,產生回聲明顯。將嚴重干擾前排座位的聽覺效果。因此必須要進行專業的聲學處理。

音質設計方案:
1、天花:
根據專業軟件計算及綜合到墻面,地面材料的墻面,天花不必采用強吸音材料,因此考慮成本問題,建議天花進行石膏板造型裝飾處理。

2、墻面:
(1)銀幕后墻面:
銀幕后面是音響擺放位置,因此建議此后墻面采用高效吸聲材料,如50厚mm布藝吸音板進行噪聲的加強吸收。銀幕四周采用透聲布進行材料隱蔽處理,從而使整面墻體成一整體性。
(2)兩側墻面:
兩側墻體均采用25mm厚的吸音軟包強吸音材料,該材料為軟質材料,在具有強吸聲功能外,還減少了聲音的反射性。另外該材料對光線無反射,符合電影院對聲學材料的要求。


(3)背墻面
觀眾廳的后墻面應采用防止回聲的全頻帶強吸聲結構。其平均系數在125-4000Hz范圍內不易小于0.6s,125Hz的吸聲系數不宜小于0.4s。考慮到電影院的整體性,宜采用25mm厚布藝吸音板,進行各頻段吸音。

3、地面
地面建議采用化纖地毯,避免采用具有光反射的瓷磚。
4、座椅:
為了減少觀眾對室內音質的影響,座椅的吸聲量應滿足如下:

座椅的面層為織布等具有良好的透聲性能,靠背的上部和兩側為不穿孔的反射面材,座椅下部面層為穿孔吸音材料。
設計效果:
1、裝飾美觀大方,視覺感受舒適良好。
2、吸聲材料沒有玻璃纖維顆粒的粉塵污染,沒有甲醛污染,滿足場所內空氣質量環保要求。
3、具有良好的音色。即低、中、高音適度平衡。
4、吸聲材料滿足防火等級要求。
5、場所內聽音較清晰,無聲染色等音質缺陷。
6、工程實施后聲環境及場內環境適宜,混響時間為:

聲學材料性能要求:
1、聲學吸聲性能要求滿足聲學設計要求;
2、沒有玻璃纖維粉塵污染,滿足環保要求;
3、甲醛釋放量達到E1級以上標準;
4、吸聲材料的防火性能滿足消防要求;
5、具有防霉防潮的性能;
6、具備優良的耐久性、穩定性和抗機械損傷特性。
經研究決定,該影城采用了諾聲聲學生產的吸音軟包2000多平方米,利用軟包吸聲材料消除觀眾廳聲聚焦、顫動回聲、多重回聲等聲學缺陷;減少了噪聲對擴聲系統的聲干擾,營造了一個良好的視聽效果。項目完工后得到客戶的一致認可與好評!

歡迎來電咨詢:0757-88048577
佛山諾聲聲學裝飾材料有限公司是一家提供隔音板、吸音板等聲學材料銷售、聲學設計及施工一站式服務的企業。為保證產品質量,工廠引進德國進口機器,進行加工作業。采購吸音材料,就找佛山諾聲吸音板廠家,吸音板價格實惠,品質保證。